527 500 Р 6 930 $ или 5 950

Информация об помещении

1
Этаж

Состояние и оснащение

Количество этажей
2
Развернуть
Агент
+7 (910) 690-40-16
Начать чат с агентом

Помещение свободного назначения в Владимирская область, Владимир ул. ...

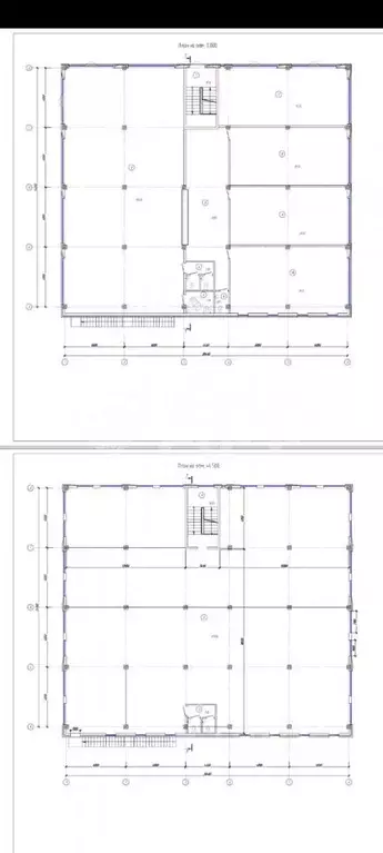
Сдам в аренду помещение в торгово-офисном центре на 1 этаже, стоимостью 500р за кВ.м.Коммунальные услуги оплачиваются отдельно по приборам учета.В помещении сделан ремонт, потолки Амстронг, пол плитка Керамогранит, ,освещение 60-60 светодиоды. Помещение оборудовано сан.узлами, электрическая мощность 100 квт, в помещении имеется собственная система кондиционирования, свой тепловой узел,предусмотрены запасные пожарные выходы, система оповещения при пожаре, оборудовано системой видеонаблюдения, имеется собственная парковка во дворе, разгрузочно -погрузочная зона, собственное место под световую рекламу, земельный участок в долгосрочной аренде. Данный офисный центр находится в пешей доступности от центра города, рядом с Торговыми рядами, имеется остановка общественного транспорта.

Читать полностью
    Позвонить Написать
    527 500 Р6 930 $ или 5 950
    Агент
    +7 (910) 690-40-16
    Начать чат с агентом
    Похожие предложения
    Помещение свободного назначения в Тюменская область, Тюмень ул. ... - Фото 1
    Помещение свободного назначения в Тюменская область, Тюмень ул. ... - Фото 2
    Представляем вашему вниманию уникальное предложение по аренде помещения свободного назначения площадью 405 квадратных метров. Это помещение идеально подойдет для тех, кому важен комфорт и удобство. Здесь продумана каждая деталь, чтобы обеспечить вашим...
    • 1/1 эт.
    526 500 Р
    Агент
    +7 (982) Показать номер
    Посмотреть контакты
    Помещение свободного назначения в Ростовская область, Ростов-на-Дону ... - Фото 1
    Помещение свободного назначения в Ростовская область, Ростов-на-Дону ... - Фото 2
    Сдаётся помещение в ТЦ Сиверса на 1 этаже. Свободная планировка и возможность деления на секции позволяют адаптировать пространство под любые нужды. Есть своя подстанция и парковка на крыше здания. Отдельный вход . Своя зона разгрузки . На 2 этаж лифт...
    • 1/3 эт.
    540 000 Р
    Агент
    +7 (989) Показать номер
    Посмотреть контакты
    Помещение свободного назначения в Ленинградская область, Всеволожский ... - Фото 1
    Помещение свободного назначения в Ленинградская область, Всеволожский ... - Фото 2
    Торговый центр состоит из двух этажей расположен на въезде в Янино-ядом с КАД, ближайшие станции метро Ладожская, Проспект Большевиков. Активный автомобильный и пешеходный трафик.Налоговая: 21. Лифты: Нет. Вентиляция: Естественная. Кондиционирование:...
    • 2/2 эт.
    525 000 Р
    Агент
    +7 (933) Показать номер
    Посмотреть контакты
    Помещение свободного назначения в Краснодарский край, Краснодар ул. ... - Фото 1
    Помещение свободного назначения в Краснодарский край, Краснодар ул. ... - Фото 2
    Сдаю торгово офисное помещение общей площадью 330 кв.м.От Собственника. Без комиссии- ул. 40-лет победы, рядом с жк ПАНОРАМА- Удобный подъезд- Район высокой деловой активности- Высокий автомобильный и пешеходный трафик- 2й этаж- Витражные окна- Парковка...
    • 2/3 эт.
    528 000 Р
    Агент
    +7 (918) Показать номер
    Посмотреть контакты
    Помещение свободного назначения в Краснодарский край, Краснодар ... - Фото 1
    Помещение свободного назначения в Краснодарский край, Краснодар ... - Фото 2
    Сдаю коммерческое помещение на Школьной общей площадью 350 мОт Собственника. Без комиссии- Первая линия- Рядом находится парк Галицкого и ЖК Сердце- Высокий автомобильный и пешеходный трафик- Удобная планировка, выбор площадей- Отлично подходит под любой...
    • 2/2 эт.
    525 000 Р
    Агент
    +7 (918) Показать номер
    Посмотреть контакты

    Не нашли подходящего объявления?

    Оставьте заявку, и наши риэлторы подберут псн в районе Владимира

    (0)