80 000 000 Р 1 002 300 $ или 860 800

Информация об помещении

1
Этаж

Состояние и оснащение

Количество этажей
3
Развернуть
Агент
+7 (910) 170-23-76
Начать чат с агентом

Помещение свободного назначения в Владимирская область, Владимир ...

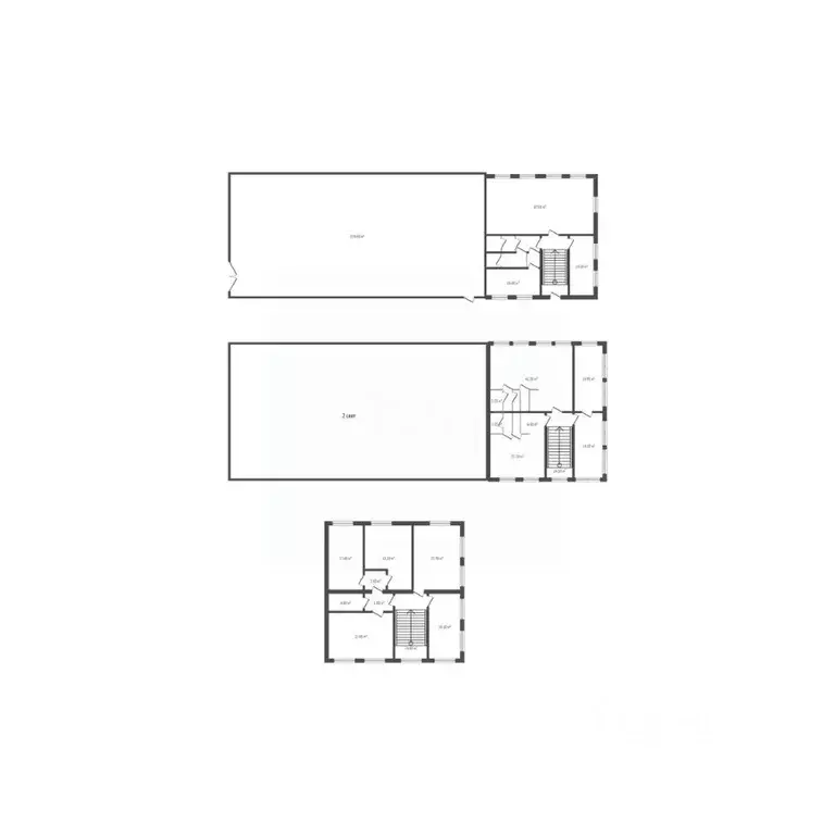
Внимание - арендный бизнес Окупаемость - 7 лет Продается отдельно стоящее здание площадью 2.100 кв.м., на собственном земельном участке 43,6 соток. Здание трехэтажное подвал, первый и второй этаж. Подвал полноценный, с хорошей отделкой, зоной загрузки-разгрузки, высокими воротами. На первый этаж пристроена зона разгрузки, с дебаркадером, двумя высокими воротами. Высота зоны разгрузки около 6 метров. Высота первого и второго этажа 3 метра. Планировка этажей свободная, сетка колонн 6х6 метров. Нагрузка на пол 1,5тонны на метр. Крыша коньком, профлист. Электричество выделено 100 кВА, с возможностью увеличения. Все коммуникации центральные. Подведен газ. Стоит своя газовая котельная с двумя котлами каждый по 100 кВт. Также к зданию примыкают гаражные боксы, высотой 6 метров. Сейчас используются как автосервис и производство. Земельный участок расположен рядом с новым жилым комплексом Добросельский . В этом районе всегда востребованы помещения под склады и производство. Подъезд для большегрузных автомобилей и зона разгрузки имеется. Перспективный объект для вложений и развития Код пользователя: 178730Номер в базе: 3942766

Читать полностью
    Позвонить Написать
    80 000 000 Р1 002 300 $ или 860 800
    Агент
    +7 (910) 170-23-76
    Начать чат с агентом
    Похожие предложения
    Помещение свободного назначения в Москва Береговой проезд, 1Б (90 м) - Фото 1
    Помещение свободного назначения в Москва Береговой проезд, 1Б (90 м) - Фото 2
    Вашему вниманию предлагается помещение свободно назначения на территории Большого Сити. Два отдельных входа, панорамные окна, высокие потолки с возможность. выделить антресольный этаж. Прекрасное расположение - прямо напротив нового БЦ Эйлер, которое...
    • 1/8 эт.
    80 550 000 Р
    Агент
    +7 (985) Показать номер
    Посмотреть контакты
    Помещение свободного назначения в Москва просп. Мира, 222 (107 м) - Фото 1
    Помещение свободного назначения в Москва просп. Мира, 222 (107 м) - Фото 2
    Лот 962002 Предложение от Собственника В продаже представлено коммерческое помещение свободного назначения общей площадью 107,4 м, расположенное на первом этаже в здании первой линии. Помещение углового формата оборудовано панорамными витринами и характеризуется...
    • 1/35 эт.
    80 550 000 Р
    Агент
    +7 (986) Показать номер
    Посмотреть контакты
    Продажа ПСН, Ростов-на-Дону, ул. Таганрогская - Фото 1
    Продажа ПСН, Ростов-на-Дону, ул. Таганрогская - Фото 2
    Продажа ПСН, Ростов-на-Дону, ул. Таганрогская - Фото 3
    Продажа ПСН, Ростов-на-Дону, ул. Таганрогская - Фото 4
    общая площадь 1000м², полезная площадь 1000м²

    В продаже отдельно стоящее здание 1000 м2 на земельном участке 800 м2. Локация - Таганрогская/Вавилова - район большого автомобильного трафика и развитой инфраструктуры. Конструктив здания выполнен в 4 уровня - цоколь с высокими потолками + 3 этажа с...
    • 1 000 м²
    79 000 000 Р
    Агент
    +7 (918) Показать номер
    Агентство
    Маралин
    Посмотреть контакты
    Помещение свободного назначения в Москва Очаковское ш., 5к5 (81 м) - Фото 1
    Помещение свободного назначения в Москва Очаковское ш., 5к5 (81 м) - Фото 2
    Продается угловое нежилое помещение на 1 линии в очень густонаселенном районе многоэтажной современной застройки - жилой комплекс Матвеевский Парк. Отдельный вход без ступенек, витринные окна, свободная планировка, высокие потолки - 4,5 метра, все коммуникации.В...
    • 1/33 эт.
    79 000 000 Р
    Агент
    +7 (994) Показать номер
    Посмотреть контакты
    Помещение свободного назначения в Хабаровский край, Хабаровск ул. ... - Фото 1
    Помещение свободного назначения в Хабаровский край, Хабаровск ул. ... - Фото 2
    Уникальное предложение Цена с НДСПродаётся административное здание свободного назначения на первой линии в историческом центре города. Это двухэтажное здание общей площадью 354.40 кв.м., с отдельным входом с улицы. В данный момент идет черновая отделка,...
    • 2/2 эт.
    79 999 000 Р
    Агент
    +7 (914) Показать номер
    Посмотреть контакты

    Не нашли подходящего объявления?

    Оставьте заявку, и наши риэлторы подберут псн в районе Владимира

    (0)