3 000 000 Р 38 610 $ или 33 210

Информация о квартире

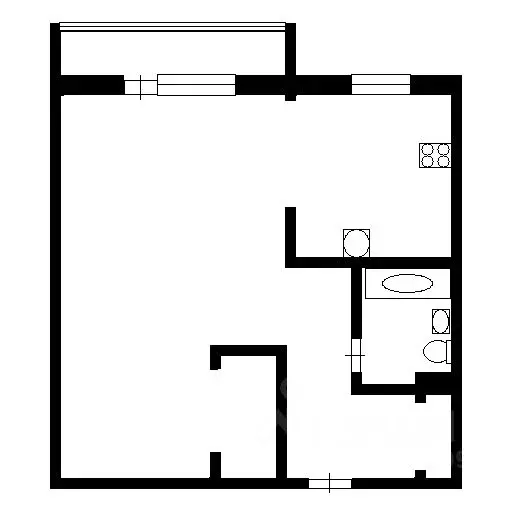
31 м2
Площадь
13 м2
Жилая
7 м2
Кухня
1
Комната
1
Этаж
9
Этажность

Дополнительная информация

Тип дома
кирпичный
Развернуть
Агент
+7 (910) 095-84-37
Начать чат с агентом

1-к кв. Владимирская область, Владимир Тракторная ул., 7а (31.5 м)

Продаётся уютная однокомнатная квартира в кирпичном доме. Общая площадь — 31,5 кв. м, жилая — 13,8 кв. м, кухня — 7,9 кв. м. Квартира расположена на первом этаже девятиэтажного дома 1992 года постройки. Окна выходят во двор, что обеспечивает тишину и спокойствие.В комнате сделан косметический ремонт, что позволяет сразу заехать и жить. Достаточно вместительная 8 м2 кухня и наличие лоджии делают пространство более функциональным. Благодаря окнам во двор, в квартире всегда тихо.Дом находится в хорошем состоянии, оборудован пассажирским лифтом и пандусом, поэтому доступ в подъезд удобен для всех категорий граждан. Наземная парковка рядом с домом позволяет легко найти место для вашего автомобиля.В шаговой доступности от дома расположены школы, детские сады, клиники и магазины, поэтому все необходимое для комфортной жизни будет у вас под рукой. Удобная транспортная доступность: рядом находятся остановки общественного транспорта, что позволяет быстро добраться до нужного места.Квартира продаётся без Обременений. Один взрослый собственник. Подбор альтернативного варианта. Документы готовы к сделке. Возможна покупка в ипотеку. Агент гарантирует полное юридическое сопровождение сделки.

Читать полностью

    Для того, чтобы купить однокомнатную квартиру по адресу: Владимир, Октябрьский, ул. Тракторная, 7а, позвоните по телефону +7 (910) 095-84-37. Торопитесь! Объявление №30092009382 о продаже однокомнатной квартиры опубликовано 24 ноября 2025.

    Позвонить Написать
    3 000 000 Р38 610 $ или 33 210
    Агент
    +7 (910) 095-84-37
    Начать чат с агентом
    Похожие предложения
    1-к кв. Владимирская область, Владимир Тракторная ул., 9б (28.0 м) - Фото 1
    1-к кв. Владимирская область, Владимир Тракторная ул., 9б (28.0 м) - Фото 2
    1-комнатная квартира, общая площадь 28м², жилая 13м², кухня 8м²

    Код объекта: 1930425.Уникальное предложение в городе Владимир: просторная и уютная однокомнатная квартира на Тракторной улице, 9Б. Это идеальный выбор для молодых специалистов, которые ценят комфорт и удобство.Квартира расположена на 5 этаже 9-этажного...
    • 28 м²
    • 1-ком
    • 5/9 эт.
    • кирпичный
    2 900 000 Р
    Агент
    +7 (915) Показать номер
    Посмотреть контакты
    1-к кв. Владимирская область, Владимир ул. Балакирева, 29 (34.0 м) - Фото 1
    1-к кв. Владимирская область, Владимир ул. Балакирева, 29 (34.0 м) - Фото 2
    1-комнатная квартира, общая площадь 34м², жилая 17м², кухня 6м²

    Супер низкая цена Продается однокомнатная квартира, на 5 этаже, угловая, но очень теплая, лоджия застеклена, крыша не течет, окна ПВХ, входная дверь железная. Квартира под ремонт, чистая без посторонних запахов. Во дворе парковка. Рядом остановка,...
    • 34 м²
    • 1-ком
    • 5/5 эт.
    • панельный
    3 100 000 Р
    Агент
    +7 (915) Показать номер
    Посмотреть контакты
    2-к кв. Владимирская область, Владимир ул. Асаткина, 28 (40.4 м) - Фото 1
    2-к кв. Владимирская область, Владимир ул. Асаткина, 28 (40.4 м) - Фото 2
    2-комнатная квартира, общая площадь 40м², жилая 26м², кухня 6м²

    Арт.Уютная двушка в зеленом оазисе Владимира ждет своих хозяев Мечтаете о собственном жилье вдали от шумных магистралей, но с удобным доступом ко всем благам цивилизации? Предлагаем вашему вниманию уютную двухкомнатную квартиру в тихом, зеленом районе...
    • 40 м²
    • 2-ком
    • 3/3 эт.
    • кирпичный
    2 990 000 Р
    Агент
    +7 (919) Показать номер
    Посмотреть контакты
    1-к кв. Владимирская область, Владимир просп. Строителей, 16а (30.5 м) - Фото 1
    1-к кв. Владимирская область, Владимир просп. Строителей, 16а (30.5 м) - Фото 2
    1-комнатная квартира, общая площадь 30м², жилая 17м², кухня 6м²

    Арт.Продается квартира в центре Владимира Ищите отличное вложение в недвижимость? Эта квартира — именно то, что вам нужно Состояние требует ремонта, что дает вам возможность воплотить свои идеи и создать идеальное пространство как для личного проживания,...
    • 30 м²
    • 1-ком
    • 1/5 эт.
    • панельный
    2 900 000 Р
    Агент
    +7 (915) Показать номер
    Посмотреть контакты
    1-к кв. Владимирская область, Владимир ул. Луначарского, 27 (31.0 м) - Фото 1
    1-к кв. Владимирская область, Владимир ул. Луначарского, 27 (31.0 м) - Фото 2
    1-комнатная квартира, общая площадь 31м², жилая 17м², кухня 6м²

    Код объекта: 1928100.Уникальное предложение в сердце Владимира: продаётся уютная 1-комнатная квартира по адресу улица Луначарского, 27. Этот объект — идеальный выбор для тех, кто ценит комфорт и доступность.Квартира расположена на первом этаже трёхэтажного...
    • 31 м²
    • 1-ком
    • 1/3 эт.
    • кирпичный
    3 100 000 Р
    Агент
    +7 (915) Показать номер
    Посмотреть контакты

    Не нашли подходящего объявления?

    Оставьте заявку, и наши риэлторы подберут квартиру в районе Владимира

    (0)