Россия, Владимирская область, Владимир, Глоракс Октябрьский жилой комплекс
7 289 999 Р 93 510 $ или 80 470

Информация о квартире

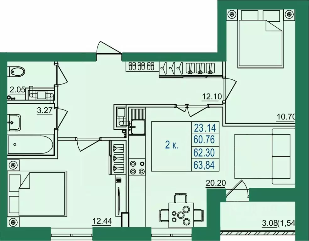
47 м2
Площадь
21 м2
Жилая
13 м2
Кухня
2
Комнаты
16
Этаж
17
Этажность

Дополнительная информация

Тип дома
монолит
Развернуть
Агент
+7 (982) 007-68-09
Начать чат с агентом

2-к кв. Владимирская область, Владимир Глоракс Октябрьский жилой ...

Продается Комнат на Этаж (ряд) -м этаже в строящемся проекте комфорт-класса GloraX Октябрьский. Общая площадь лота составляет Площадь по проекту общая (расчетная) кв. м, из которых Площадь по проекту жилая кв. м отведено под жилую и Площадь по проекту кухни кв. м под кухонную зону. Номер квартиры - лота .Преимущества квартиры:- Собственная коммерческая инфраструктура и комьюнити-центр для жителей - Безопасность на всех уровнях: закрытый двор, видеонаблюдение и система Умный Дом - Безбарьерная среда - Дизайнерские остекленные холлы - Просторные колясочные в каждой секции - Эргономичные квартиры с евро-планировками - Чистовая отделка квартир в 2 стилях на выбор и с дополнительной опцией покраски стен в 4 трендовых цвета на выбор: агатовый серый, серебристо-серый, серый шелк и тонкий лен.- Пешеходный бульвар, площадь с амфитеатром, велодорожки, спортивные и детские площадки, многоуровневые паркинги и зеленые дворы.- Строительство трех современных детских садов на 750 детей и проектирование общеобразовательной школы на 1500 учениковGloraX Октябрьский — масштабный проект комфорт-класса во Владимире, который расположился в 2-х минутах от ул. Горького. На территории 40 Га появятся 9 очередей жилого строительства с благоустроенными терриориями и концепцией Тихий двор . 7,31 Га выделено под озеленение.GloraX Октябрьский — это комфортная среда обитания, где каждый сантиметр продуман и логичен. Это единое пространство, в которое входят пешеходный бульвар, площадь с амфитеатром, велодорожки, спортивные и детские площадки, многоуровневые паркинги и зеленые дворы.Во дворах есть всё для тренировок на свежем воздухе: велодорожки, турники, брусья, площадки для кроссфита и воркаута с мембранным покрытием для круглогодичных занятий.В коммерческих помещениях первых этажей планируется размещение аптек, магазинов, кафе и сервисных центров, необходимых для комфортной жизни.GloraX Октябрьский находится в локации с развитой инфраструктурой и хорошей транспортной доступностью.В шаговой доступности расположены остановки общественного транспорта, 3 детских сада, 3 школы и главный корпус Владимирского государственного университета.Кроме того, в рамках реализации проекта планируется строительство трёх современных детских садов на 750 детей и проектирование общеобразовательной школы на 1500 учеников.Отличительное преимущество GloraX Октябрьский — видовые квартиры на верхних этажах. Все помещения сдаются уже с предчистовой отделкой. В пакетных предложениях предусмотрена дополнительная возможность установки датчиков протечек для вашей безопасности.Можно выбрать жилье с полной отделкой или готовые квартиры с меблировкой, подобранной профессиональными дизайнерами. Вы сможете сразу переехать и начать жить в новом доме.Узнайте подробности в Отделе продаж.

Читать полностью
    Позвонить Написать
    7 289 999 Р93 510 $ или 80 470
    Агент
    +7 (982) 007-68-09
    Начать чат с агентом
    Похожие предложения в Владимире
    2-к кв. Владимирская область, Владимир пос. Заклязьменский, Заречье ... - Фото 1
    2-к кв. Владимирская область, Владимир пос. Заклязьменский, Заречье ... - Фото 2
    2-комнатная квартира, общая площадь 62м²

    Продаётся 2-комнатная квартира в строящемся доме (Дом 5 (корпус 2)), срок сдачи: II-кв. 2027, общей площадью 62.3 кв.м., на 2 этаже. Заречье-парк - это современный микрорайон из двадцати четырех 5-8-этажных кирпичных домов с уникальным архитектурным...
    • 62 м²
    • 2-ком
    • 2/8 эт.
    7 289 100 Р
    Агент
    +7 (930) Показать номер
    Посмотреть контакты
    2-к кв. Владимирская область, Владимир пос. Заклязьменский, Заречье ... - Фото 1
    2-к кв. Владимирская область, Владимир пос. Заклязьменский, Заречье ... - Фото 2
    2-комнатная квартира, общая площадь 62м²

    Продаётся 2-комнатная квартира в строящемся доме (Дом 5 (корпус 1)), срок сдачи: II-кв. 2027, общей площадью 62.17 кв.м., на 2 этаже. Заречье-парк - это современный микрорайон из двадцати четырех 5-8-этажных кирпичных домов с уникальным архитектурным...
    • 62 м²
    • 2-ком
    • 2/8 эт.
    7 273 890 Р
    Агент
    +7 (930) Показать номер
    Посмотреть контакты
    2-к кв. Владимирская область, Владимир пос. Заклязьменский, Заречье ... - Фото 1
    2-к кв. Владимирская область, Владимир пос. Заклязьменский, Заречье ... - Фото 2
    2-комнатная квартира, общая площадь 62м²

    Продаётся 2-комнатная квартира в строящемся доме (Дом 4 (корпус 2)), срок сдачи: II-кв. 2027, общей площадью 62.17 кв.м., на 2 этаже. Заречье-парк - это современный микрорайон из двадцати четырех 5-8-этажных кирпичных домов с уникальным архитектурным...
    • 62 м²
    • 2-ком
    • 2/8 эт.
    7 273 890 Р
    Агент
    +7 (930) Показать номер
    Посмотреть контакты
    2-к кв. Владимирская область, Владимир Глоракс Октябрьский жилой ... - Фото 1
    2-к кв. Владимирская область, Владимир Глоракс Октябрьский жилой ... - Фото 2
    2-комнатная квартира, общая площадь 46м², жилая 20м², кухня 14м²

    Продается Комнат на Этаж (ряд) -м этаже в строящемся проекте комфорт-класса GloraX Октябрьский. Общая площадь лота составляет Площадь по проекту общая (расчетная) кв. м, из которых Площадь по проекту жилая кв. м отведено под жилую и Площадь по...
    • 46 м²
    • 2-ком
    • 16/17 эт.
    • монолит
    7 259 999 Р
    Агент
    +7 (982) Показать номер
    Посмотреть контакты
    2-к кв. Владимирская область, Владимир Глоракс Октябрьский жилой ... - Фото 1
    2-к кв. Владимирская область, Владимир Глоракс Октябрьский жилой ... - Фото 2
    2-комнатная квартира, общая площадь 47м², жилая 21м², кухня 13м²

    Продается Комнат на Этаж (ряд) -м этаже в строящемся проекте комфорт-класса GloraX Новинки. Общая площадь лота составляет Площадь по проекту общая (расчетная) кв. м, из которых Площадь по проекту жилая кв. м отведено под жилую и Площадь по проекту...
    • 47 м²
    • 2-ком
    • 16/17 эт.
    • монолит
    7 369 999 Р
    Агент
    +7 (982) Показать номер
    Посмотреть контакты

    Не нашли подходящего объявления?

    Оставьте заявку, и наши риэлторы подберут квартиру в новостройке в районе Владимира

    (0)