4 227 975 Р 54 270 $ или 46 270

Информация о квартире

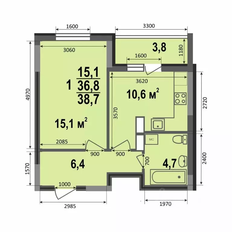
38 м2
Площадь
15 м2
Жилая
10 м2
Кухня
1
Комната
15
Этаж
17
Этажность

Дополнительная информация

Тип дома
монолит
Развернуть
Агент
+7 (936) 544-75-86
Начать чат с агентом

1-к кв. Владимирская область, Владимир Веризино мкр, Веризино лайф ...

Однокомнатная квартира (38,7 кв.м) - это квартира с совмещенным санузлом, большой жилой комнатой и просторной прихожей. Окна квартиры выходят на внешнюю сторону дома. На кухне расположен выход на лоджию.ЖК Смоленская 3А - это 17-этажный монолитный дом, строящийся в рамках смарт-квартала VERIZINO life:- современный стильный фасад- дизайнерская отделка подъездов- сквозные подъезды с выходом как во двор, так и на внешнюю сторону дома- в квартирах выполнена черновая отделка- двор без машин и уютными пешеходными, игровыми и спортивными зонами- большое спортивное поле с резиновым покрытием для разных видов спорта- 2 лифта в каждом подъезде- разнообразие планировочных решений- новый детский сад в 400 метрах от дома- рядом заканчивается строительство новой школы- магазины, салоны, детские центры, пункты выдачи интернет-магазинов, остановкиСрок сдачи дома: 4 кв.2025 г. Квартиру можно приобрести несколькими способами:- Ипотека- Рассрочка- Обмен старой квартиры на новую по программе Трейд Ин- Материнский капитал, жилищные сертификаты Квартира сдается с качественной черновой отделкой: штукатурка стен, выравнивающая стяжка пола, установка пластиковых окон с подоконниками и откосами, установка входной двери, без электрической разводки. ООО Специализированный застройщик СК Континент . Проектная декларация на сайте наш.дом.pфЦена указана с учетом максимальной скидки. Подробный расчет по телефону или в офисе продаж застройщика.

Читать полностью
    Позвонить Написать
    4 227 975 Р54 270 $ или 46 270
    Агент
    +7 (936) 544-75-86
    Начать чат с агентом
    Похожие предложения в Владимире
    1-к кв. Владимирская область, Владимир ул. Смоленская, 3А (40.0 м) - Фото 1
    1-к кв. Владимирская область, Владимир ул. Смоленская, 3А (40.0 м) - Фото 2
    1-комнатная квартира, общая площадь 40м², жилая 16м², кухня 12м²

    Арт.Продаю квартиру 40 кв. м в новостройке. Просторная кухня 12,7 кв. м, комната 16 кв. м, удобная гардеробная.ЖК Смoленcкaя 3A - этo 17-этaжный монoлитный дом, cтрoящийcя в рaмкаx cмаpт-квaрталa VЕRIZINО lifе:- coвpeменный стильный фaсад- дизайнерская...
    • 40 м²
    • 1-ком
    • 7/17 эт.
    • кирпичный
    4 100 000 Р
    Агент
    +7 (919) Показать номер
    Посмотреть контакты
    Студия Владимирская область, Владимир Глоракс Октябрьский жилой ... - Фото 1
    Студия Владимирская область, Владимир Глоракс Октябрьский жилой ... - Фото 2
    студия, общая площадь 29м², жилая 14м², кухня 6м²

    Продается квартира-студия на 8-м этаже в строящемся проекте комфорт-класса GloraX Октябрьский. Общая площадь лота составляет 29,45 кв. м, из которых 14,30 кв. м отведено под жилую и 6,28 кв. м под кухонную зону. Номер квартиры - 282.Преимущества квартиры:Просторная...
    • 29 м²
    • студия-ком
    • 8/17 эт.
    • монолит
    4 189 999 Р
    Агент
    +7 (982) Показать номер
    Посмотреть контакты
    1-к кв. Владимирская область, Владимир Сновицы-Веризино мкр,  (40.05 ... - Фото 1
    1-к кв. Владимирская область, Владимир Сновицы-Веризино мкр,  (40.05 ... - Фото 2
    1-комнатная квартира, общая площадь 40м², жилая 11м², кухня 13м²

    Продается 1-комнатная квартира 153 в Квартале Новаторов комфорт-класса.Отделка:Квартиры сдаются в предчистовой отделке: чистовая стяжка, гипсовая штукатурка в комнатах и коридоре, электроразводка по квартире. Обязательное остекление всех лоджий и установка...
    • 40 м²
    • 1-ком
    • 1/9 эт.
    4 245 300 Р
    Агент
    +7 (912) Показать номер
    Посмотреть контакты
    1-к кв. Владимирская область, Владимир Сновицы-Веризино мкр,  (40.32 ... - Фото 1
    1-к кв. Владимирская область, Владимир Сновицы-Веризино мкр,  (40.32 ... - Фото 2
    1-комнатная квартира, общая площадь 40м², жилая 10м², кухня 18м²

    Продается 1-комнатная квартира 75 в Квартале Новаторов комфорт-класса.Отделка:Квартиры сдаются в предчистовой отделке: чистовая стяжка, гипсовая штукатурка в комнатах и коридоре, электроразводка по квартире. Обязательное остекление всех лоджий и установка...
    • 40 м²
    • 1-ком
    • 1/9 эт.
    4 152 960 Р
    Агент
    +7 (912) Показать номер
    Посмотреть контакты
    1-к кв. Владимирская область, Владимир Веризино мкр, Веризино лайф ... - Фото 1
    1-к кв. Владимирская область, Владимир Веризино мкр, Веризино лайф ... - Фото 2
    1-комнатная квартира, общая площадь 38м², жилая 12м², кухня 12м²

    Однокомнатная квартира (38,8 кв.м) - это квартира с гардеробной и совмещенным санузлом. Окна квартиры выходят на внешнюю сторону дома. Кухня и жилая комната имеют примерно одинаковую площадь.ЖК Смоленская 3А - это 17-этажный монолитный дом, строящийся...
    • 38 м²
    • 1-ком
    • 2/17 эт.
    • монолит
    4 238 900 Р
    Агент
    +7 (936) Показать номер
    Посмотреть контакты

    Не нашли подходящего объявления?

    Оставьте заявку, и наши риэлторы подберут квартиру в новостройке в районе Владимира

    (0)