Реализация объекта недвижимости приостановлена

Информация о квартире

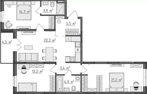
78.0 м2
Площадь
2
Комнаты
17
Этаж
17
Этажность

Дополнительная информация

Тип дома
монолит
Развернуть

2-к кв. Владимирская область, Владимир ул. Мира, 5 (78.79 м)

Квартира 63, секция Г, Корпус 1( ЗУ-1) в новостройке напрямую от ЗАСТРОЙЩИКА. Ипотека, материнский капитал, субсидии возможны г. Владимир, ул. Мира, д. 5 Отделка - Без отделки. - ВНИМАНИЕ АКЦИИ При покупке любой квартиры в ЖК Отражение, ЖК Гвардейский, ЖК Гвардейский 2.0. (строящиеся дома и сданные) стяжка пола в квартире в ПОДАРОК. Скидка при покупке квартиры с ремонтом в сданных и строящихся домах:-Отделка GREY KEY 50 -Чистовая отделка Комфорт -30 При заказе комплекса черновая + чистовая отделки скидки не суммируется, скидка предоставляется с чистовой отделки. - Жилой комплекс Отражение - это четыре 17-этажных дома класса комфорт в центральном районе города: 5 минут до исторического центра и столько же для того, чтобы выбраться за город и к живописным местам у реки Содышка. Территория застройки комплекса находится между улицами Горького и Мира. Такое удачное расположение сочетает в себе, казалось бы, несовместимое: беспрепятственный доступ к главным дорожным развязкам города, и при этом комфорт и тишину вдали от шумных трасс. Витражное остекление фасадов создает единую поверхность из стекла, в которой отражаются чудесные пейзажи. Увеличенные оконные проёмы дают возможность естественному свету в любое время года максимально проникать в комнаты. Особое внимание уделено обустройству зон общего пользования. Стильная современная отделка подъездов и входных групп, просторные вестибюли с высотой потолков до 4-х метров позволяют почувствовать комфорт уже с парадных дверей. Крышная газовая котельная позволит не только сэкономить на коммунальных платежах, но и избавит от перебоев с горячим водоснабжением. Для Вашего удобства на момент сдачи дома в каждой квартире будут установлены приборы учета. В каждом подъезде будут, колясочные, для жителей с ограниченными возможностями предусмотрена установка электроподъёмников. Для автолюбителей предусмотрены наземный паркинги. Обо всех вариантах покупки и ипотечных программах Вас проконсультирует менеджер отдела продаж по телефону. Звоните

Читать полностью

    Реализация объекта недвижимости приостановлена

    Не нашли подходящего объявления?

    Оставьте заявку, и наши риэлторы подберут квартиру в новостройке в районе Владимира

    (0)