 
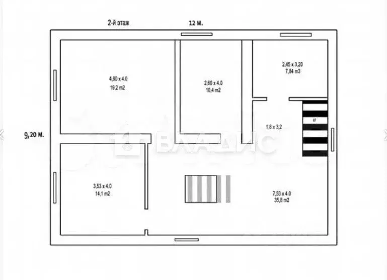
										Код объекта: 792670. Предлагается к продаже 2 этажный дом 230 кв.м с удобной планировкой, в современном коттеджном посёлке Милино, расположенном в 2 километрах от г. Владимир, ровный земельный участок - 15 соток.Территория поселка находится под охраной с КПП.Комплексная застройка. Организованная инфраструктура: асфальт, газ, центральное водоснабжение от артезианской скважины, электричество 380в. Следующие услуги входят в цену дома: газ, вода и электричество будет введено в дом согласно выбранному проекту покупателя. Дом выполнен из газобетонных блоков (гарантия прохлады летом и тепла в морозы), отделка фасада из высококачественной декоративной штукатурки, цвет под заказ. Благоустройство- утепленная ЖБ отмостка с гидроизоляцией. Коммуникации: электричество 15кВт, канализация (септик), вода (центральная скважина). Оперативный показ, звоните Подходит под сельхоз ипотеку. Имеется Проект дома (бонус для покупателя). Документы готовы. Один взрослый собственник.
Для того, чтобы купить 2-этажный коттедж по адресу: Сновицы, коттеджный посёлок Милино, позвоните по телефону +7 (915) 771-32-43. Торопитесь! Объявление №50015173889 о продаже двухэтажного коттеджа опубликовано 2 дня назад.
 
								 
											
                                                                         
											
                                                                         
											
                                                                         
											
                                                                         
											
                                                                        Оставьте заявку, и наши риэлторы подберут купить дом в районе Сновиц
