59 500 Р 745 $ или 640

Информация об помещении

2
Этаж

Состояние и оснащение

Количество этажей
6
Развернуть
Агент
+7 (986) 711-46-93
Начать чат с агентом

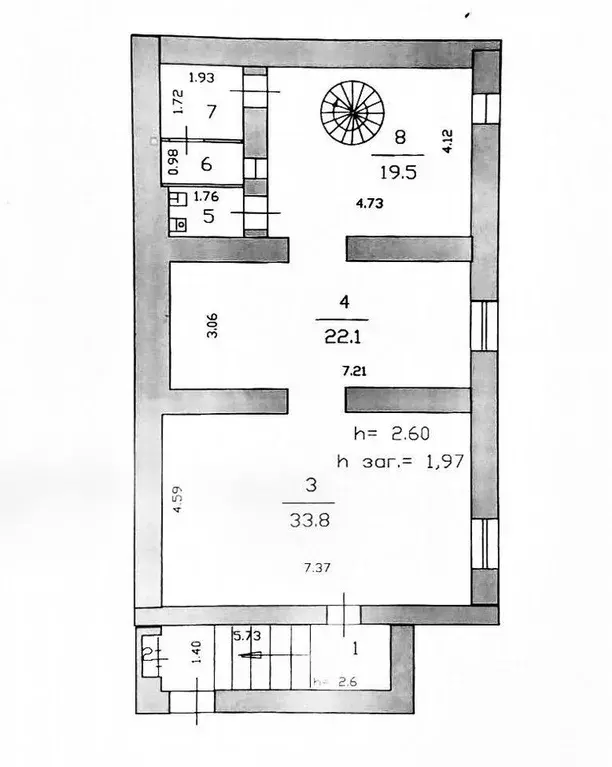
Торговая площадь в Владимирская область, Муром ул. Куликова, 4 (70 м)

Торговый центр расположен в центре города с развитой инфраструктурой(остановки, банки, гипермаркеты, автовокзал), хорошей локацией. Сам тц состоит из 6 этажей, в 2017 г сделан капитальный ремонт трех этажей. График работы с 9. 00-21. 00. На территории тц имеется асфальтированная автомобильная автостоянка, ведется видеонаблюдение. тц один из самых популярных в городе, объединено большое число магазинов промтоварной группы. На первом этаже расположен супермаркет Магнит, кафе, аптека, кухни, мир Света и др. ,на втором этаже расположены отделы товаров для детей, спорт товары, обувь, хоз товары, ателье, тур агенство, бижутерия. На шестом этаже расположен:детский развивающий центр, парк аттракционов, английский клуб. На 3-5 этажах расположены магазины промтоварной группы. Сдаваемая площадь находится на втором этаже тц, на хорошо просматриваемом месте, так же рядом с отделом расположен лифт, что дает дополнительное преимущество в уровне проходимости(трафика). Удобное расположение отдела, подходит главным образом для динамично развивающихся организаций, что поможет ускорить процесс развития бизнеса. Код пользователя: 141024Номер в базе: 7070303

Читать полностью
    Позвонить Написать
    59 500 Р745 $ или 640
    Агент
    +7 (986) 711-46-93
    Начать чат с агентом
    Похожие предложения
    Торговая площадь в Владимирская область, Муром Московская ул., 86 (60 ... - Фото 1
    Торговая площадь в Владимирская область, Муром Московская ул., 86 (60 ... - Фото 2
    Сдается помещение на трафике
    • 1/1 эт.
    60 000 Р
    Агент
    +7 (985) Показать номер
    Посмотреть контакты
    Торговая площадь в Владимирская область, Гусь-Хрустальный просп. 50 ... - Фото 1
    Торговая площадь в Владимирская область, Гусь-Хрустальный просп. 50 ... - Фото 2
    Помещение коммерческого назначения расположено на первом этаже жилого дома в оживленном районе с высокой концентрацией населения. Объект характеризуется исключительной пешеходной проходимостью, являясь ключевой точкой на главной маршрутной линии района....
    • 1/5 эт.
    59 000 Р
    Агент
    +7 (915) Показать номер
    Посмотреть контакты
    Торговая площадь в Владимирская область, Гусь-Хрустальный ул. ... - Фото 1
    Торговая площадь в Владимирская область, Гусь-Хрустальный ул. ... - Фото 2
    Сдаются в аренду площади в строящемся торгово-развлекательном центре в г. Гусь-Хрустальный, Владимирской области. Общая площадь 4200 кв.м. Срок запуска март 2020 года.Здание расположено в одном из центральных районов города, обладающим наивысшим торговым...
    • 1/2 эт.
    60 000 Р
    Агент
    +7 (910) Показать номер
    Посмотреть контакты
    Торговая площадь в Владимирская область, Лакинск г. Собинский ... - Фото 1
    Торговая площадь в Владимирская область, Лакинск г. Собинский ... - Фото 2
    Код объекта: 1533167. Сдаётся торговое помещение площадью 120 кв.м. на проспекте Ленина, 45 в городе Лакинске.Расположено на втором этаже двухэтажного здания с наземной парковкой - ТЦ Лакинск.Торговый центр расположен на трассе М7, имеется съезд и жилой...
    • 2/2 эт.
    60 000 Р
    Агент
    +7 (915) Показать номер
    Посмотреть контакты
    Торговая площадь в Ростовская область, Ростов-на-Дону просп. Сиверса, ... - Фото 1
    Торговая площадь в Ростовская область, Ростов-на-Дону просп. Сиверса, ... - Фото 2
    Арт.. Собственник сдает в аренду торговые площади от 30 до 300 м2. Рядом расположен супермаркет Чижик . Каждое помещение с отдельной входной группой и витриной, мокрой точкой. Подходит под ПВЗ, аптеку, зоомагазин, азиатскую кухню, пиццерию, отделение...
    • 1/1 эт.
    60 000 Р
    Агент
    +7 (919) Показать номер
    Посмотреть контакты

    Не нашли подходящего объявления?

    Оставьте заявку, и наши риэлторы подберут торговое помещение в районе Мурома

    (0)