Реализация объекта недвижимости приостановлена

Информация об помещении

1
Этаж

Состояние и оснащение

Количество этажей
5
Развернуть

Помещение свободного назначения (119.5 м)

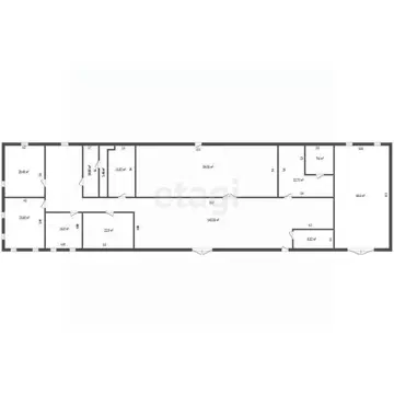
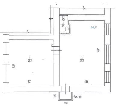
Код объекта: 2005124.Уникальное предложение для бизнеса и инвестицийАдрес: Россия, Владимирская область, Ковровский муниципальный округ, посёлок Малыгино, Юбилейная улица, 63.Почему стоит обратить внимание:- Выгодная цена: предложение актуально для тех, кто ищет выгодное вложение или место для своего бизнеса.- Удобное расположение: отдельный вход и свободный доступ в помещение на первом этаже пятиэтажного кирпичного здания.- Простор и функциональность: общая площадь 119,5 кв. м, высота потолков 3,4 м, возможность зонирования пространства.Дополнительные преимущества:- Современное оборудование: интернет, кондиционер, кухня.- Комфорт и уют: косметический ремонт, центральное отопление.Это идеальное место для открытия нового бизнеса или инвестирования в недвижимость. Не упустите шанс стать владельцем этого объекта Позвоните нам прямо сейчас, чтобы узнать больше и записаться на просмотр.Мы гарантируем безопасную сделку и юридическую поддержку нашим Клиентам. Поможем одобрить ипотеку с сниженной ставкой.

Читать полностью

    Реализация объекта недвижимости приостановлена

    Не нашли подходящего объявления?

    Оставьте заявку, и наши риэлторы подберут псн в районе Малыгино

    (0)