Александровский район
Выбрать Отмена
14 450 000 Р 178 100 $ или 153 000

Информация о коттедже

161 м2
Площадь
2
Этажность
25 cоток
Участок

Дополнительная информация

Дом продаётся вместе с участком
есть
Развернуть
Агент
+7 (917) 526-13-05
Начать чат с агентом

Дом в Владимирская область, Александровский муниципальный округ, ...

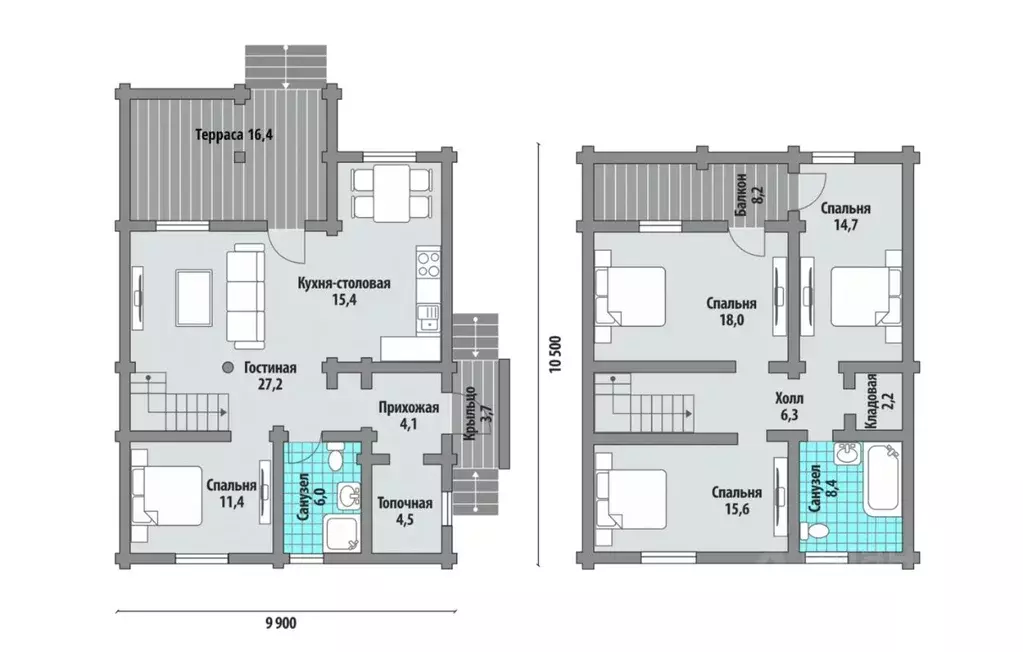
Арт.К покупке предлагается загородная резиденция в закрытом коттеджном посёлке Залесье .Вашему вниманию:Большой бревенчатый дом 161.2 м2 с большой гостиной и каминомГостевой дом-баня с просторной кухней-гостиной и вторым светомДвухэтажный гараж в стиле шалеЗамечательный участок 25 соток с лесными и садовыми деревьямиАтмосферный ДПК с охраной и асфальтированными дорогами в окружении лесаДОМБревенчатый дом площадью 161.2 м2 возвели в 2007 году. Полностью устоявшийся. Обжитой. Мебелированный. Проект дома с тремя спальными комнатами, двумя сан. узлами, большой гостиной, смежной с кухней, примыкающим гаражом с автоматическими воротами, бойлерной и просторной комнатой свободного назначения над гаражом. Из дома есть выходы на заднюю террасу (из гостиной) и на застеклённые лоджии второго этажа (из холла и спальной комнаты).Фото планировки дома прилагается.Хорошая мебель, кухонный гарнитур идеально подчёркивают светлый и уютный интерьер деревянного дома, а высокие потолки добавляют атмосферности пространству.ГОСТЕВОЙ ДОМГостевой дом-баня расположен в глубине участка. Планировка первого этажа: большая кухня гостинная, терраса, парилка, помывочная, совмещённый С/У, прихожая-бойлерная. Планировка второго этажа: просторная комната отдыха со видом на кухню-гостиную.ГАРАЖДвухэтажный гараж расположен при въезде на участок и рядом с домом. На первом этаже предусмотрено место под транспорт, установлен туалет, душевая. На втором этаже две комнаты свободного назначения.УЧАСТОКУчасток 25 соток огорожен штакетником. Ровный. Растут как хвойные деревья, так и плодово-ягодные. Можно сказать, что у Вас с террасы дома свой выход в лес Сделано благоустройство, вымощены дорожки, сделана площадка вдоль гаража и до дома для стоянки машин.РАСПОЛОЖЕНИЕДПК Залесьеасположен в 90 км от МКАД по скоростному Ярославскому шоссе, но добраться можно и по Горьковскому шоссе. В 3-х км расположен город Струнино со всей своей богатой инфраструктурой: жд станция, школы, дет. сады, поликлиника, больница, продуктовые и сетевые магазины, рынок, аптеки и прочее.Один взрослый собственник. Полная сумма в договоре. Оперативный показ по договорённости. Остались вопросы? - Звоните Цыплёнков Андрей

Читать полностью

    Для того, чтобы купить 2-этажный коттедж по адресу: , позвоните по телефону +7 (917) 526-13-05. Торопитесь! Объявление №50016526748 о продаже двухэтажного коттеджа опубликовано Вчера.

    Позвонить Написать
    14 450 000 Р178 100 $ или 153 000
    Агент
    +7 (917) 526-13-05
    Начать чат с агентом
    Похожие предложения
    Дом в Александров, Большая Внуковская улица, 38 (170 м) - Фото 1
    Дом в Александров, Большая Внуковская улица, 38 (170 м) - Фото 2
    1 этаж, общая площадь 170м², участок 10 соток

    Арт.Предлагаю в покупку новый современный одноэтажный дом, с ухоженным участком 10 соток в живописном месте в черте города Александров. Общая площадь дома 170 кв.м. Размер дома 15*12 м. · По дому разведены: отопление от газового двух контурного...
    • 1 эт.
    • 170 м²
    • 10 сот.
    14 100 000 Р
    Агент
    +7 (965) Показать номер
    Посмотреть контакты
    Дом в Владимирская область, Александровский муниципальный округ, ... - Фото 1
    Дом в Владимирская область, Александровский муниципальный округ, ... - Фото 2
    2 этажа, общая площадь 190м², участок 15 соток

    Уютный домик в кп Торбеевка.Комфортный по площади каменный дом утеплен и обшит имитацией бруса внутри и снаружи, с тёплым водяным полом. Ленточный фундамент с железо бетонными перекрытиями. Планировка: крыльцо, холл, кухня-гостиная, 5 изолированных спален,...
    • 2 эт.
    • 190 м²
    • 15 сот.
    14 500 000 Р
    Агент
    +7 (985) Показать номер
    Посмотреть контакты
    Коттедж в Владимирская область, Александровский муниципальный округ, ... - Фото 1
    Коттедж в Владимирская область, Александровский муниципальный округ, ... - Фото 2
    2 этажа, общая площадь 161м², участок 10 соток

    Продается новый дом в коттеджном поселке бизнес класса Лесные Озера . 85 км от МКАД по Ярославскому шоссе, далее по трассе А108, фактически принадлежит Александровскому району Владимирской области. Экологически чистый район, в окружении нетронутой природы....
    • 2 эт.
    • 161 м²
    • 10 сот.
    13 350 000 Р
    Агент
    +7 (919) Показать номер
    Посмотреть контакты
    Коттедж в Владимирская область, Александровский муниципальный округ, ... - Фото 1
    Коттедж в Владимирская область, Александровский муниципальный округ, ... - Фото 2
    1 этаж, общая площадь 115м², участок 11 соток

    Продается новый дом в коттеджном поселке бизнес класса Лесные Озера . Дом 115 кв.м. из клееного бруса с земельным участком. Кухня-гостиная с выходом на террасу, 4 спальни.Территория дома огорожена забором и имеет подъездной путь. Магистральный газ, электричество,...
    • 1 эт.
    • 115 м²
    • 11 сот.
    13 000 000 Р
    Агент
    +7 (919) Показать номер
    Посмотреть контакты
    Дом в Владимирская область, Александровский муниципальный округ, ... - Фото 1
    Дом в Владимирская область, Александровский муниципальный округ, ... - Фото 2
    2 этажа, общая площадь 145м², участок 20 соток

    Дом для ежегодного проживания со всеми коммуникациями. Полностью укомплектован новой мебелью и техникой ( посудомоечная машина, холодильник, стиральные машины) Рядом с домом продуктовый и строительный магазин. На первом этаже большой холл, спальная комната,...
    • 2 эт.
    • 145 м²
    • 20 сот.
    15 000 000 Р
    Агент
    +7 (985) Показать номер
    Посмотреть контакты

    Не нашли подходящего объявления?

    Оставьте заявку, и наши риэлторы подберут купить дом в районе Александровского района

    (0)