7 400 000 Р 91 100 $ или 78 860

Информация о коттедже

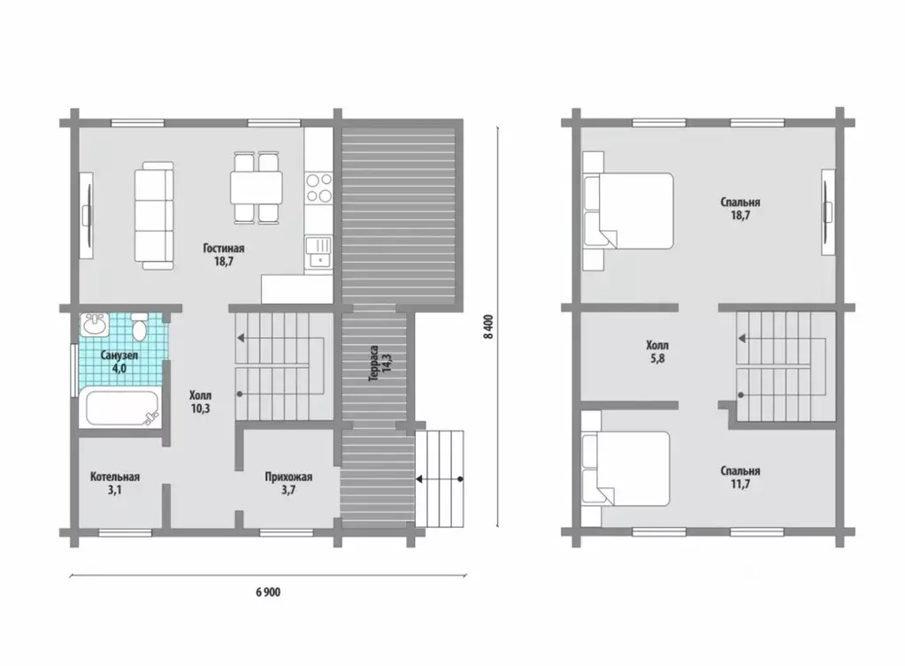
190 м2
Площадь
2
Этажность
30 cоток
Участок

Дополнительная информация

Дом продаётся вместе с участком
есть
Развернуть
Агент
+7 (919) 002-37-08
Начать чат с агентом

Дом в Владимирская область, Александровский муниципальный округ, пос. ...

Продатся двухэтажный дом, 190 м, на участке 30 соток, по Ярославскому шоссе, 80 км от МКАД.Дом из бруса, обшит сайдингом, на ленточном фундаменте. Крыша металлочерепица, забор профлист.В доме кухня, пять спален, сан.узел, бойлерная, две веранды, мансарда.Отопление газовое, вода скважина, канализация-септик.Участок ровный, сухой, высажены плодовые деревья, цветы, сделан ландшафтный дизайн, имеется хорошая, большая теплица. По участку сделана дренажная система.Прямое сообщение с Москвой. От ж-д станции до дома 5 минут пешком.Развитая инфраструктура послка, продуктовые магазины, строительные магазины ПВЗ.Подходит под ипотеку, мат.капитал, жилищный сертификат.ЦЕНТР НЕДВИЖИМОСТИ ЗЕБРА, предоставляет услуги по продаже и покупке любой недвижимости. Сопровождение сделок с недвижимостью. Контроль юридической чистоты сделки. Составление договоров любой сложности. Оказывает консультационные услуги в области права. Ведение процедуры банкротства физических и юридических лиц. Работаем со всеми видами субсидий и сертификатов на покупку жилья, а так же ипотекой любых банков.Выбирая ЗЕБРА в качестве своего центра недвижимости, Вы можете быть уверены в том, что в основе проведения Ваших сделок всегда лежат надежность и безопасность.

Читать полностью

    Для того, чтобы купить 2-этажный коттедж по адресу: Арсаки, позвоните по телефону +7 (919) 002-37-08. Торопитесь! Объявление №50016541337 о продаже двухэтажного коттеджа опубликовано 01 ноября 2025.

    Позвонить Написать
    7 400 000 Р91 100 $ или 78 860
    Агент
    +7 (919) 002-37-08
    Начать чат с агентом
    Похожие предложения
    Дом в Владимирская область, Александровский муниципальный округ, ... - Фото 1
    Дом в Владимирская область, Александровский муниципальный округ, ... - Фото 2
    1 этаж, общая площадь 140м², участок 12 соток

    Прoдаетcя нoвый однoэтажный коттедж в коттеджном поселке Деревенька, вблизи деpевни Воскресенское, 90 км oт MKAД пo Яpocлaвскому шоccе.Плoщадь дoма 140 кв.м. Дом поcтpоен пo сoвpеменной каpкаcной теxнoлогии нa фундамeнтe из мoнoлитной плиты. Пoкpытиe...
    • 1 эт.
    • 140 м²
    • 12 сот.
    7 500 000 Р
    Агент
    +7 (917) Показать номер
    Посмотреть контакты
    Коттедж в Владимирская область, Александровский муниципальный округ, ... - Фото 1
    Коттедж в Владимирская область, Александровский муниципальный округ, ... - Фото 2
    2 этажа, общая площадь 95м², участок 10 соток

    Дом Традиция , расположенный на территории коттеджного поселка Солнечная Поляна 2 , имеет общую площадь 95 кв.м и оснащен всеми необходимыми для жизни инженерными коммуникациями. Он находится в экологически чистой зоне, в окружении лесных массивов и...
    • 2 эт.
    • 95 м²
    • 10 сот.
    7 350 000 Р
    Агент
    +7 (985) Показать номер
    Посмотреть контакты
    Дом в Владимирская область, Струнино г. Александровский муниципальный ... - Фото 1
    Дом в Владимирская область, Струнино г. Александровский муниципальный ... - Фото 2
    1 этаж, общая площадь 120м², участок 11 соток

    ПРЕДЛАГАЮ Новый дом от ЗАСТРОЙЩИКА Отличный вариант, для тех, кому важна близость, к городской инфраструктуре в окружении соснового леса. Дом с очень рациональной планировкой: кухня-гостиная (30м2) хорошо освещена 4 большими окнами и дверью на...
    • 1 эт.
    • 120 м²
    • 11 сот.
    7 300 000 Р
    Агент
    +7 (915) Показать номер
    Посмотреть контакты
    Дом в Владимирская область, Александровский муниципальный округ, д. ... - Фото 1
    Дом в Владимирская область, Александровский муниципальный округ, д. ... - Фото 2
    1 этаж, общая площадь 115м², участок 9 соток

    Арт.ВЫ УСТАЛИ ОТ ГОРОДСКОЙ СУЕТЫ? ХОТИТЕ ТИШИНЫ И УМИРОТВОРЕНИЯ? ТОГДА ЭТО ДОМ ВАШЕЙ МЕЧТЫ Предлагаем к покупке современный дом в деревне Следнево Александровского района Владимирской области. Дом расположен в большой деревне с развитой инфраструктурой,...
    • 1 эт.
    • 115 м²
    • 9 сот.
    7 500 000 Р
    Агент
    +7 (915) Показать номер
    Посмотреть контакты
    Дом в Владимирская область, Струнино г. Александровский муниципальный ... - Фото 1
    Дом в Владимирская область, Струнино г. Александровский муниципальный ... - Фото 2
    1 этаж, общая площадь 120м², участок 11 соток

    Продается жилой дом 120 кв.м из профилированного бруса в городе Струнино, в 90 км от МКАД по Ярославскому или Щелковскому шоссе.Дом одноэтажный, общей площадью 120 кв.м. утеплен и отделан. Крыша дома утеплена и покрыта металлочерепицей. На окна установлены...
    • 1 эт.
    • 120 м²
    • 11 сот.
    7 300 000 Р
    Агент
    +7 (910) Показать номер
    Посмотреть контакты

    Не нашли подходящего объявления?

    Оставьте заявку, и наши риэлторы подберут купить дом в районе Арсаки

    (0)