9 620 000 Р 127 400 $ или 109 000

Информация об помещении

3
Этаж

Состояние и оснащение

Количество этажей
3
Развернуть
Агент
+7 (915) 770-93-22
Начать чат с агентом

Помещение свободного назначения в Владимирская область, Александров ...

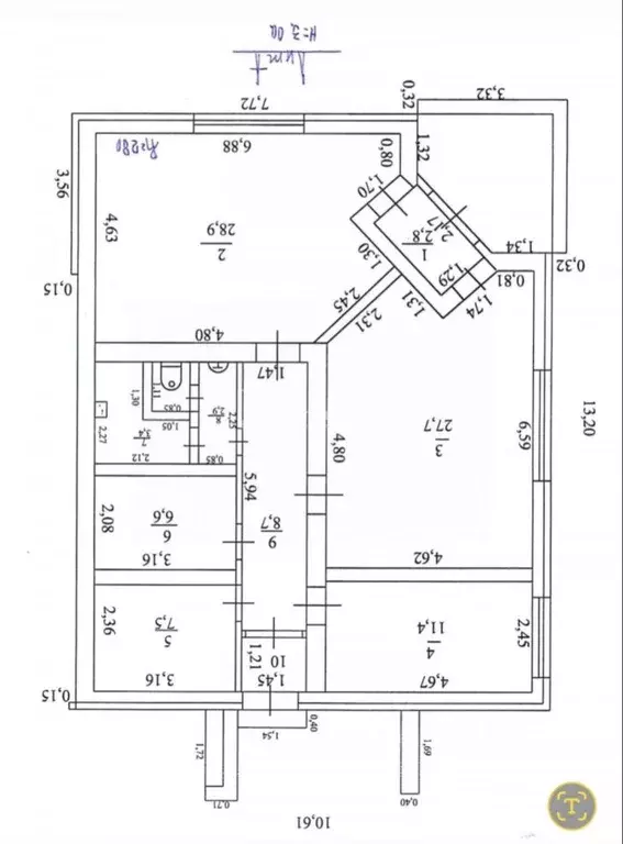
Нежилое помещение 148 м в отдельно стоящем здании в центре Александрова — на перекрёстке с активным трафиком. Идеальный вариант как для собственного бизнеса, так и под арендный доход. Свободная планировка, два входа, предчистовая отделка, интернет, парковка у здания. Можно организовать всё: от клиники и офиса до студии или мастерской. Гибкие возможности — и полная свобода действий.Здесь бизнесу ничего не мешает — только помогает.Ваш бизнес — в своём здании Продаётся коммерческое помещение 148 м в отдельно стоящем нежилом здании в центре Александрова.Расположено на 3-м этаже, с двумя отдельными входами — с фасада и со двора. Здание находится на оживлённом перекрёстке, обеспечивая стабильный поток пешеходного и автомобильного трафика. Отличная видимость с улицы, удобный подъезд, просторная парковочная зона перед зданием и отдельная закрытая парковка для собственников.Планировка:Несколько отдельных кабинетов и зон: 5 комнат и санузел. Пространство легко адаптируется под любые задачи.Есть еще подвал 70 кв м , который легко можно использовать под склад. Выполнена предчистовая отделка — будущий владелец может реализовать проект под свои цели без переплаты за чужой ремонт.Коммуникации:Централизованные отопление, водоснабжение и канализация. Надёжная кабельная интернет-линия. Установлены приборы учёта.Преимущества:— Отдельно стоящее здание без жилых помещений— Высокий трафик, отличная транспортная доступность— Свободное назначение — под любой бизнес— Предчистовая отделка — ремонт под ваши задачи— Парковка у здания— Развитая инфраструктура поблизости— До вокзала 10 минут, прямое сообщение с МосквойПомещение идеально подойдёт для частной клиники, офиса, студии, мастерской, учебного центра, шоурума, креативного пространства, сервиса услуг, ателье и других форматов.Подходит как для собственного бизнеса, так и для инвестиций с целью сдачи в аренду.Документы готовы. Один собственник. Быстрый выход на сделку.Звоните, чтобы договориться о просмотре и обсудить все детали.

Читать полностью
    Позвонить Написать
    9 620 000 Р127 400 $ или 109 000
    Агент
    +7 (915) 770-93-22
    Начать чат с агентом
    Похожие предложения
    Помещение свободного назначения в Владимирская область, Ковров ул. Зои ... - Фото 1
    Помещение свободного назначения в Владимирская область, Ковров ул. Зои ... - Фото 2
    Арт.Предлагаем в продажу торговое помещение, отдельно стоящее здание с входом.Характеристики помещения:- Общая площадь: 107 м- Адрес: г. Ковров, ул. Зои Космодемьянской д.1/11 лит. А- Планировка: Универсальная, подходит для любого вида коммерческой деятельности...
    • 1/1 эт.
    9 700 000 Р
    Агент
    +7 (915) Показать номер
    Посмотреть контакты
    Помещение свободного назначения в Владимирская область, Ковров аллея ... - Фото 1
    Помещение свободного назначения в Владимирская область, Ковров аллея ... - Фото 2
    Арт.Продается коммерческое помещение в мкр Славный, дом сдан Рассмотрим ОБМЕН Представьте себе идеальное место для вашего процветающего бизнеса просторное помещение в сердце микрорайона Славный, где каждый день кипит жизнь Этот дом уже сдан, и вас...
    • 1/5 эт.
    9 590 000 Р
    Агент
    +7 (915) Показать номер
    Посмотреть контакты
    Помещение свободного назначения в Воронежская область, Воронеж ул. ... - Фото 1
    Помещение свободного назначения в Воронежская область, Воронеж ул. ... - Фото 2
    ГК Развитие — федеральный застройщик, работающий вегионах России: Ленинградская область, Москва и МО, Воронеж, Орёл, Самара, Липецк, Кисловодск, Крым. Компания развивает проекты от стандарт до бизнес-класса.За 14 лет работы компания зарекомендовала...
    • 1/24 эт.
    9 648 000 Р
    Агент
    +7 (980) Показать номер
    Посмотреть контакты
    Помещение свободного назначения в Воронежская область, Воронеж ул. ... - Фото 1
    Помещение свободного назначения в Воронежская область, Воронеж ул. ... - Фото 2
    ГК Развитие — федеральный застройщик, работающий вегионах России: Ленинградская область, Москва и МО, Воронеж, Орёл, Самара, Липецк, Кисловодск, Крым. Компания развивает проекты от стандарт до бизнес-класса.За 14 лет работы компания зарекомендовала...
    • 1/24 эт.
    9 628 500 Р
    Агент
    +7 (980) Показать номер
    Посмотреть контакты
    Помещение свободного назначения в Воронежская область, Воронеж ул. ... - Фото 1
    Помещение свободного назначения в Воронежская область, Воронеж ул. ... - Фото 2
    ГК Развитие — федеральный застройщик, работающий вегионах России: Ленинградская область, Москва и МО, Воронеж, Орёл, Самара, Липецк, Кисловодск, Крым. Компания развивает проекты от стандарт до бизнес-класса.За 14 лет работы компания зарекомендовала...
    • 1/24 эт.
    9 628 500 Р
    Агент
    +7 (980) Показать номер
    Посмотреть контакты

    Не нашли подходящего объявления?

    Оставьте заявку, и наши риэлторы подберут псн в районе Александрова

    (0)